Großzügige 3-Zimmer-Wohnung im DG mit Balkon
-
Diese großzügige 3-Zimmer-Wohnung befindet sich im Dachgeschoss eines gepflegten Mehrfamilienhauses mit sieben Parteien aus dem Baujahr 1955 und befindet sich in guter Lage von Ratingen, nicht weit der Stadtmitte entfernt.
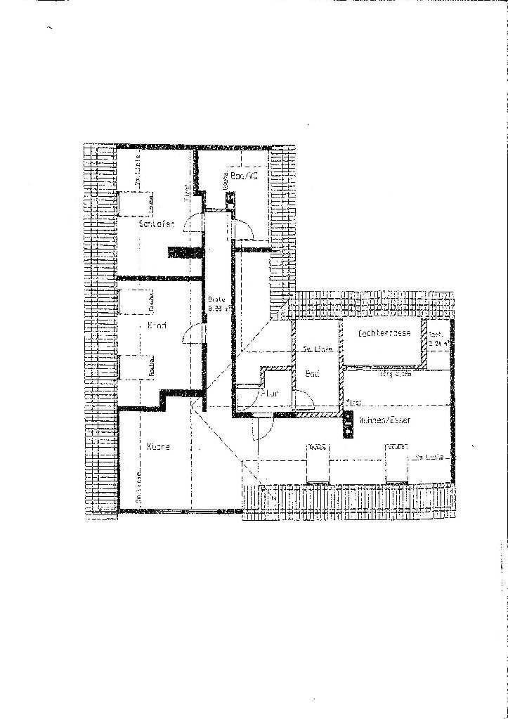
Auf ca. 110 m² Wohnfläche bietet die Wohnung eine durchdachte Aufteilung mit einer Diele, einem geräumigem Wohn-/Essbereich mit offener Küche, einem Schlafzimmer, einem Kinderzimmer oder Home-Office, einem Tageslichtbad mit Badewanne und Dusche, sowie einem Gästebad und einem traumhaften Sonnenbalkon.
Ergänzt wird das Angebot durch einen privaten Kellerraum sowie einen gemeinschaftlich genutzten Bereiche wie einen Wasch-, Trocken- und Fahrradraum.
Energieausweis: Bedarfsausweis gültig von: 07.04.2025; Endenergiebedarf Wärme: 164 kWh/(m²a); wesentliche Energieträger Heizung: Befeuerung Gas; Energieeffizienzklasse: F; Baujahr: 1955
BITTE LESEN:
Bei Interesse an der Wohnung schauen Sie sich gerne einmal die Lage an, sollte Ihnen diese zusagen und Sie die weiteren Eckpunkte erfüllen, senden Sie uns gerne eine schriftliche Anfrage.
– Mindestmietlaufzeit von 2 Jahren
– Einzug mit maximal 3 Personen möglich
– Ein solides, eigenes Einkommen wird voraus gesetzt -
Flächen
- Wohnfläche: 110 m²
- Wohneinheiten: 7
- Zimmer insgesamt: 3
- Schlafzimmer: 2
- Badezimmer: 2
- Etage: 3
- Balkone: 1
Zustand & Erschließung
- Baujahr: 1955
- Zustand: gepflegt
- Keller: voll unterkellert
Sonstiges
- Immobilie ist verfügbar ab: 01.01.2026
-
Hier einige Ausstattungsmerkmale aufgeführt:
– Gasetagenheizung
– Laminatboden
– Tageslichtbad mit Wanne und Dusche
– Gästebad
– Küchenübernahme möglich
– Kellerraum
– Waschkeller
– Fahrradkeller
– Balkon- Art der Ausstattung: Standard
- Heizungsart: Etagenheizung
- Befeuerung: Gas
-
- Energieausweis-Art: Bedarf
- Energieausweis gültig bis: 07.04.2035
- Endenergiebedarf: 163 kWh/(m²*a)
- Heizenergieverbrauchskennwert: 163 kWh/(m²*a)
- Energieeffizienzklasse: F
- Baujahr (Energieausweis): 1955
- Energieausweis-Ausstellungsdatum: 07.04.2025
- Energieausweis-Jahrgang: ab Mai 2014
- Energieausweis-Gebäudeart: Wohngebäude
- Primärenergieträger: Gas
-
Die Wohnung befindet sich in einer zentralen Wohnlage auf der Grenze zwischen Ratingen-Ost und Ratingen-Mitte nur wenige Gehminuten vom historischen Stadtkern entfernt. Das Umfeld ist geprägt durch eine aufgelockerte Wohnbebauung und eine grüne Umgebung.
Einkaufsmöglichkeiten wie Discounter, Lebensmitteleinzelhandel und Dinge des täglichen Bedarfs befinden sich in weniger als 700 Meter Entfernung. Kindergärten und eine Grundschule sind ebenfalls sehr schnell zu Fuß erreichbar.
Die Naherholungsgebiete Blauer See sowie die Auermühle mit Restaurant/Biergarten im reizvollen Angertal liegen auch in fußläufiger Entfernung. Die Umgebung bietet sehr viele Wanderwege und Erholungsmöglichkeiten.
Zum S-Bahn Anschluss nach Essen, Düsseldorf und Köln benötigt man ca. 8 Minuten zu Fuß. Optimale Verkehrsanbindung an die Autobahnen A3 Köln-Oberhausen, die A44 Ratingen-Mönchengladbach und die Autobahn A52 Essen-Düsseldorf / Roermond (NL), an den Flughafen und in das Ruhrgebiet.
-
- Kaltmiete: 1.100 €
- monatl. Betriebs-/Nebenkosten: 230 €
- Heizkosten in Warmmiete enthalten: nein
- Kaution: 3.300 €
Grundrisse


















