Doppelhaushälfte mit Garage und großem Grundstück in ruhiger Wohnlage von MG-Wickrath
-
Ursprünglich wurde die solide Doppelhaushälfte als Siedlungshaus in 2,5-geschossiger Massivbauweise im Jahre 1952 erbaut. Die teilunterkellerte Immobilie mit Satteldach wird als Einfamilien-Doppelhaushälfte genutzt, könnte aufgrund der Aufteilung auch als 2-Familienhaus/Mehrgenerationenhaus genutzt werden. Vor ca. 15 Jahren wurde die freiliegende, linke Giebelseite komplett erneuert und verkleidet.
Linksseitig vom Objekt liegt die zum Haus gehörende, 1980 errichtete Fertiggarage mit Stromzufuhr und gepflasterter Einfahrt. Der Abstand zwischen der freiliegenden Hausseite wurde mit einem kleinen, zugänglichen Metallzaun überbrückt, der den gepflasterten Gehweg zur Straße mit dem Garten verbindet. Den Abschluss der Gartens bildet eine Rundbogenhecke mit abschließbarem Metallzaun. Vor dem Haus liegt ein kleiner Vorgarten. Hinter dem Haus finden Sie einen großen Garten mit Rasen- und Pflanzbereichen. Zu dem auf halber Höhe befindlichen Gartenhaus führt ein gepflasterter Gehweg. -
Flächen
- Wohnfläche: 125 m²
- Grundstücksfläche: 1.088 m²
- Zimmer insgesamt: 7
- Etagen: 2
- Stellplatzart: Garage
- Garagenstellplätze: 1
Zustand & Erschließung
- Baujahr: 1952
- Zustand: gepflegt
Sonstiges
Aufteilung:
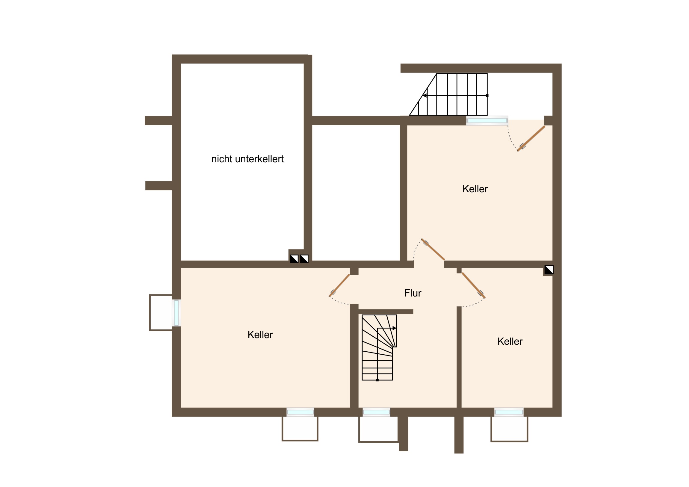
Kellergeschoss:
Die Immobilie ist teilunterkellert. Im Untergeschoss befinden sich ein Abstellraum, eine Waschküche sowie ein Heizungsraum, in dem die Gaszentralheizung für das Erdgeschoss untergebracht ist. Alle Kellerräume sind natürlich belüftet. Eine überdachte Außentreppe führt Sie direkt in den Garten.
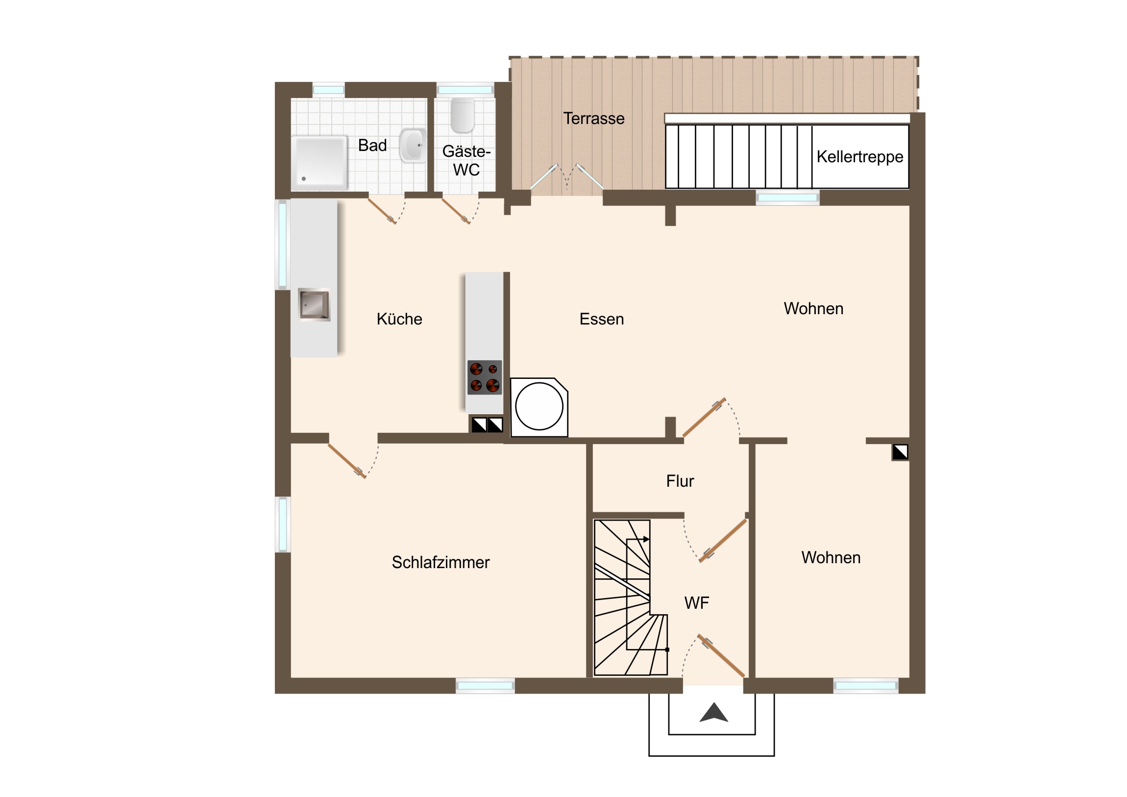
Erdgeschoss:
Eine moderne, überdachte Eingangstür gewährt Ihnen Zutritt in den zentralen Hausflur mit Treppe, die links in die Obergeschoss-Ebene führt. Die Erdgeschoss-Einheit betreten Sie über einen kleinen Flur mit Garderobe. Geradeaus erreichen Sie den offenen, geräumigen Wohn-/Essbereich, der Ihnen über eine Terrassentür Zugang in den Garten bietet, der nach Nord-West ausgerichtet ist. Im schön angelegten, großen Garten finden Sie ein großes Gartenhaus und eine komplette Einfriedung. Er ist nicht nur ein Paradies für kreative Gartenliebhaber. Eine große Rasenfläche lädt Sie und Ihre Kinder in der Freizeit zum Spielen ein. Der Terrassentritt sowie die rechtsseitig liegende Außentreppe in den Keller sind gefliest. Eine Kunststoffüberdachung erstreckt sich über die gesamte, gepflasterte Terrasse nebst Treppe. Hier finden Sie bei jedem Wetter Schutz, wie z. B. bei starker Sonnenbestrahlung oder bei Regenwetter. Vom Essbereich des Erdgeschosses gelangen Sie linksseitig weiter über einen offenen Bogen in die Küche und von dort aus zum natürlich belüfteten Duschbad sowie zum Gäste-WC und ins Schlafzimmer.
Obergeschoss:
Eine geschlossene Holztreppe führt Sie ins Obergeschoss. Bevor Sie über eine Türe in die schmale Diele der Etage eintreten, liegt rechtsseitig das Kinder-/Arbeitszimmer. Vom innenliegenden Flur aus sind alle anderen Räume der Etage erreichbar. Zur Gartenseite hin befinden sich ein Schlafzimmer mit Zugang zum kleinen Balkon, der linksseitig mit einem Sichtschutz versehen ist. Zum anderen liegt hier ein Raum, der früher als Küche genutzt wurde. Zwischen beiden Zimmern liegt das natürlich belüftete Badezimmer mit Wanne und Spritzschutz zum Duschen in der Badewanne. Die Beheizung des Obergeschosses erfolgt über die oberhalb der Wanne befindliche Gastherme. Das zur Straßenseite liegende, helle Wohnzimmer sowie das Kinder-/Arbeitszimmer komplettieren diese Etage.
Mit einigem Modernisierungsaufwand können Sie sich mit dieser Immobilie ein gemütliches Nest in einem gewachsenen Umfeld für sich und Ihre Familie schaffen.- Immobilie ist verfügbar ab: nach Absprache
-
Heizung: Gas-Heizung (1999) mit Warmwasser-Speicher im EG, separate Gas-Therme im OG
Fenster: Kunststofffenster, isolierverglast (diverse Baujahre), mit Rollläden
Bodenbeläge: Laminat, Fliesen, Parkett, Teppich
Sonstiges: Garage mit Stromzufuhr.- Heizungsart: Etagenheizung
- Befeuerung: Gas
- Bodenbelag: Teppich, Parkett
-
- Energieausweis-Art: Bedarf
- Energieausweis gültig bis: 11.07.2035
- Endenergiebedarf: 328,90 kWh/(m²*a)
- Primärenergieträger: Gas
- Energieeffizienzklasse: H
- Baujahr (Energieausweis): 1952
- Energieausweis-Ausstellungsdatum: 12.07.2025
- Energieausweis-Jahrgang: ab Mai 2014
- Energieausweis-Gebäudeart: Wohngebäude
-
Das Haus liegt im südlichen Mönchengladbacher Stadtteil Wickrath.
Durch die nahe gelegenen Autobahnauffahrten MG-Wickrath und MG-Wickrathberg/Güdderath (A 61) ist der Ort sehr gut an das hervorragend ausgebaute Autobahnnetz der Region angebunden.
Wickrath hat einen eigenen Bahnhof an der Strecke Aachen-Mönchengladbach.
Die umliegenden Städte Neuss, Krefeld und Düsseldorf sowie Venlo und Roermond auf der niederländische Grenzseite sind allesamt in 30 Minuten erreichbar.Die Immobilie befindet sich an einer ruhigen Anliegerstraße, innerhalb eines gesuchten Wohngebietes von Wickrath.
Im Ort befinden sich mehrere Kindergärten, eine Grundschule und eine Realschule. Gymnasien sind in den Nachbarstadtteilen Rheindahlen, Odenkirchen und Rheydt vorhanden und schnell erreichbar. Lebensmittelmärkte, ein Drogeriemarkt, Ärzte, Apotheken und Bankfilialen sind fußläufig zu erreichen.
Durch die Nähe zu den umliegenden Feldern, zum Wickrather Schloßpark und zum Niersgrünzug bietet die Umgebung ideale Möglichkeiten für Jogger, Spaziergänger oder Fahrradfahrer, ihren Hobbys nachzugehen. -
- Kaufpreis: 299.000 €
- Käuferprovision: 3.57 %
Grundrisse







































